Широкий спектр предложений для вашего бизнеса

Аренда

Производственный блок

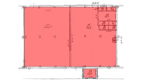
Площадь м2: 944.0
Стоимость ₽: 1 163 008
Цена за м2 в год: 14 784

Поделиться

Предлагается в аренду помещение свободного назначения общей площадью 944 кв. м, на территории Индустриального парка "ЭЛМА-МЫТИЩИ". строение № 9. Помещение подойдет под металлообработку, мебельное производство, типографию, склад.

  • Прямой договор аренды с собственником без комиссий.
  • Транспортная доступность: МКАД - 20 мин, ст. Строитель - 5 мин, ст. Мытищи - 15 мин.
  • Закрытая территория с предоставлением доступа в помещении 24/7.
  • Круглосуточная охрана. 
  • Паркинг на территории для легкового и грузового транспорта.
Дополнительно возможно арендовать офисные помещения.

Помещение после ремонта:

  • Отапливаемое помещение
  • Высота потолков - 7 м.
  • Эл. мощность 200 кВт.
  • Полы - бетон, нагрузка на пол 3т на кв. м.
  • Пандус
  • Ворота 4х4 2шт
  • Бытовые помещения
Возможен индивидуальный подбор услуг: Профессиональный клининг, охраняемая парковка на территории, высокоскоростной интернет, телефония.

Коммуникации:

  • Электрическая мощность  19,2 МВт.
  • Отопление (МОЭК), 11,073 Гкал/час
  • Парковка на 150 легковых и 50 грузовых машин

Удобное транспортное расположение:   

  • Ярославское шоссе – 3,5 км., МКАД – 8 км. Въезд автотранспорта со стороны улицы Силикатная. 
  • ст. "Строитель" - 5 мин. ст. "Мытищи" - 15 мин.

В пешей доступности парк отдыха "Леонидовка".

Индустриальный парк "ЭЛМА-МЫТИЩИ" - это комплекс зданий на территории почти 20 гектаров. Помещения различного назначения - офисные, производственные и складские.

Часть производственно-складских помещений оборудована специализированным оборудованием.

Кабинетная планировка в офисном здании. Часть помещений меблирована, с отделкой. Помещения оборудованы кондиционерами, обеспечены телефонией и интернет соединением

  • Режим работы Индустриального парка "ЭЛМА-МЫТИЩИ" - 24/7.
  • На территории комплекса осуществляется круглосуточная охрана: КПП, огороженная территория, охрана по периметру, охранная сигнализация в каждой камере (вывод на пульт охраны).
  • На объекте расположена столовая, вендинговые и кофе аппараты.

Инфраструктура Объекта

icon

БАНКОМАТЫ И ТЕРМИНАЛЫ

icon

Столовая и кафе на территории

icon

Продовольственные магазины

icon

ПАРКОВКА И ПЛОЩАДКИ ДЛЯ МАНЕВРИРОВАНИЯ

Менеджеры

manager-photo manager-photo
Найденов Антон

Ведущий менеджер по аренде объекта «ЭЛМА-МЫТИЩИ»

Телефон: +7 (925) 203-04-76
+7 (499) 286-33-33 доб. 508
E-mail: a.najdenov@elma-group.ru Связаться
manager-photo manager-photo
Заболкин Кирилл

Ведущий менеджер по аренде объекта «ЭЛМА-МЫТИЩИ»

Телефон: +7 (925) 454-23-01
+7 (499) 286-33-33 доб. 554
E-mail: k.zabolkin@elma-group.ru Связаться

Звоните в наш колл-центр и наши ведущие менеджеры помогут вам с поиском офиса, площадей под производство или склад.

+7 (499) 286-33-33

С понедельника по пятницу с 9 до 18 мск.

Заявка на звонок

Я даю своё согласие на обработку персональных данных.
Звоните в наш колл-центр и наши ведущие менеджеры помогут вам с поиском офиса, площади под производство или склад. +7 (499) 286-33-33 С понедельника по пятницу с 9 до 18 мск.
Записаться на просмотр
Я даю своё согласие на обработку персональных данных.
Сейчас операторы не в сети.
Введите свой номер телефона и удобное для Вас время звонка.
Я даю своё согласие на обработку персональных данных.
Записаться на просмотр
Я даю своё согласие на обработку персональных данных.

Личный кабинет

Регистрация
Войти как пользователь
Вы можете войти на сайт, если вы зарегистрированы на одном из этих сервисов: